
Студія дизайну Martins вже понад десять років допомагає реалізовувати найсміливіші ідеї клієнтів у сфері архітектури, дизайну інтер’єру та девелопменту. Ми забезпечуємо комплексний підхід — від першої зустрічі до фінальної реалізації вашого проєкту. Нижче розповідаємо, як саме ми працюємо на кожному етапі та які переваги отримує ваш бізнес чи особистий простір завдяки нашій команді.
1. Знайомство та формування ідеї
Перший крок — знайомство і детальний аналіз вашого запиту. Ми зустрічаємося з вами (офлайн чи онлайн), щоб зрозуміти бачення проєкту, визначити бажаний результат (наприклад, мінімалістичний інтер'єр квартири, затишний ресторан або сучасний офісний простір), а також уточнити важливі деталі: функціональність, стиль, бюджет і терміни.
Для архітектурних або девелоперських проєктів ми аналізуємо локацію, вивчаємо нормативні обмеження, конкурентне середовище та цільову аудиторію. Для дизайн-проєктів (житлових чи комерційних) проводимо виміри, фотодокументацію та складаємо детальне технічне завдання.
Після цього етапу у вас буде чітке бачення того, як ваша ідея стане реальністю, які орієнтовні терміни реалізації та бюджету необхідні для успішного старту.
2. Розробка концепції
Після знайомства і формування ідеї ми переходимо до першого візуального втілення вашого задуму. На цьому етапі ваші побажання поєднуються з професійним досвідом архітекторів, дизайнерів та девелоперів студії Martins.
- Архітектура
Ми розробляємо ескізи генерального плану, планувальні рішення, схеми фасадів і перспективні зображення. Ви зможете наочно оцінити зовнішній вигляд майбутнього об'єкту, врахувати всі важливі деталі і внести необхідні корективи ще до початку будівництва.
Як приклад, на фото вище продемонстровано наш проєкт готелю на Балі, де чітко видно продуману структуру комплексу, його взаємозв’язок із ландшафтом і зонуванням території.
-
Дизайн інтер’єру
Для вашого приміщення створюється кілька варіантів зонування, пропонується стиль, підбираються матеріали, кольорова гама та ключові елементи декору. Наш пріоритет – знайти ідеальний баланс між естетикою, ергономікою та функціональністю, щоб ви отримали комфортний і практичний простір, який щодня приноситиме задоволення.
- Девелопмент
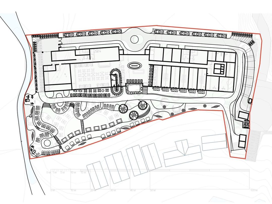
Для великих об'єктів, таких як курортні комплекси чи комерційні будівлі, ми визначаємо ринкове позиціонування, проводимо аналіз потенціалу території, оцінюємо логістику та проєктуємо необхідну інфраструктуру. Ви отримуєте чітке бачення того, як ваш проєк буде розвиватись та залучати цільову аудиторію.

На ілюстрації з генеральним планом вище можна побачити, як проєктуються великі курортні комплекси, продумуючи інфраструктуру, логістику та потенціал для розвитку на ринку.
Особливу увагу ми приділяємо реалістичній 3D-візуалізації, яка дозволяє:
-
Побачити, як виглядатиме ваш проєкт у житті, і за потреби оперативно внести зміни без зайвих витрат.
-
Чітко оцінити масштаб, пропорції, а також поєднання кольорів та матеріалів.
-
Узгодити єдине бачення між усіма учасниками процесу, уникнувши непорозумінь на подальших етапах.
Таким чином, на основі концепції ми формуємо чітке уявлення про майбутній об’єкт, визначаємо його стиль, функціональність і загальну архітектурно-дизайнерську ідею, щоб перейти до наступних етапів проєктування та реалізації.
3. Документація та деталізація
На цьому етапі ідеї набувають чітких обрисів, і ми створюємо всю необхідну документацію для комфортного та безпроблемного втілення вашого проєкту.
Архітектурні проєкти
Ми готуємо детальні ескізи генерального плану, інженерні та архітектурні креслення, які дозволять вам отримати необхідні дозволи та узгодження. Наші спеціалісти враховують всі нормативні вимоги, що гарантує швидке проходження погодження у відповідних органах і мінімізує бюрократичні затримки на шляху до старту будівництва.
Дизайн інтер’єру
Для вашого приміщення ми створюємо детальні креслення та специфікації матеріалів, які враховують усі нюанси: від точних розташувань комунікацій до вибору меблів і декору. Ви отримаєте повний пакет документів, завдяки яким ремонт чи облаштування простору відбудеться точно за планом і без неприємних сюрпризів.
Девелопмент
Для великих комерційних та житлових проєктів ми розробляємо детальну фінансову модель, яка враховує три сценарії розвитку подій (оптимістичний, реалістичний, песимістичний). Це дає вам прозоре бачення всіх можливих ризиків та перспектив, а також допомагає залучати інвесторів. Ми також готуємо всі необхідні документи для проходження юридичних перевірок і погоджень, а також супроводжуємо вас на етапах отримання дозвільної документації.
Таким чином, після цього етапу ви будете мати на руках всю необхідну документацію для початку успішної реалізації вашого проєкту з мінімальними ризиками та максимальною ефективністю.
4. Початок реалізації (будівництво, ремонт, монтаж)
Контроль процесів
Коли всі плани затверджені, ми переходимо до активної фази реалізації. Запускається будівництво (для архітектурних та девелоперських об’єктів) або ремонтні роботи (для інтер’єрних проєктів).
-
Ми перевіряємо відповідність робіт технічним вимогам, слідкуємо за витратами, термінами та коригуємо процес, якщо виникають непередбачені обставини.
-
Для девелопменту важливий менеджмент проєкту: чітка координація підрядників, постачання матеріалів, дотримання графіка будівництва.
Авторський і дизайнерський нагляд
Наша команда здійснює регулярні виїзди на об’єкт, перевіряє відповідність робіт затвердженому проєкту. Це дає змогу оперативно вносити зміни, уникати будівельних похибок та гарантувати високий рівень якості результату.
-
В інтер’єрних проєктах дизайнер супроводжує весь процес оздоблення, підбору та закупівлі меблів, декору.
-
В архітектурі та девелопменті такий нагляд допомагає уникнути відхилень від початкової концепції, зберегти цілісність проєкту та досягти найвищого рівня якості.
5. Маркетинг та продаж
На цьому етапі ми беремо на себе повний супроввд вашого проєкту від підготовки до продажу чи оренди й аж до фінального запуску:
-
Стратегія залучення клієнтів
Ми розробляємо індивідуальну маркетингову стратегію, завдяки якій ви швидко знайдете покупців або орендарів. Для цього використовуємо ефективні канали просування, професійний контент та точкове таргетування. -
Перемовини та супровід угод
Наша команда супроводжує всі етапи угоди — від перших переговорів та презентацій до укладення договорів. Ви отримуєте повну юридичну підтримку, супровід під час показів об’єкта, та допомогу у вирішенні будь-яких питань із клієнтами. -
Запуск об’єкта
Ми готуємо повний пакет необхідної документації для введення об'єкта в експлуатацію. Це гарантує, що запуск пройде без затримок, а ваші клієнти зможуть безперешкодно почати користуватися приміщенням чи комплексом.
Таким чином, наша студія забезпечує повний цикл послуг — від першої ідеї до остаточної передачі об'єкта замовнику, роблячи весь процес максимально простим і прозорим для вас.
6. Завершення проєкту та передача клієнту
Останній і найочікуваніший момент — фінальна здача. На цьому етапі:
-
Ми перевіряємо всі деталі, виправляємо недоліки (якщо вони виникли) та налаштовуємо фінальні штрихи.
-
Передаємо проєкт клієнту: житло готове до заселення, комерційний об’єкт готовий до відкриття, а інвестиційна нерухомість — до продажу чи здачі в оренду.
-
За потреби надаємо подальшу підтримку: допомагаємо з обслуговуванням, управлінням і консультуємо щодо будь-яких питань експлуатації.
Чому клієнти обирають Martins?
Студія дизайну інтер'єру Martins — це більше, ніж команда професіоналів. Це ваш надійний партнер, який супроводжує вас на всіх етапах: від ідеї до повної реалізації проєкту.
Наші клієнти цінують нас за:
-
Комплексний підхід. Ви отримуєте повний спектр послуг — від створення ідеї до запуску готового об'єкта, що суттєво економить ваш час та ресурси.
-
Професійність та досвід. За плечима наших архітекторів, дизайнерів, інженерів і менеджерів понад сотня успішних проєктів різної складності в Україні та за кордоном.
-
Індивідуальний підхід. Ми завжди враховуємо ваші особисті побажання, особливості локації та стиль життя, створюючи простір, у якому комфортно саме вам або вашим клієнтам.
-
Високі стандарти якості. Використовуємо сучасні технології, якісні матеріали та продумані рішення, що гарантує довговічність і функціональність кожного об'єкта.
-
Соціальна відповідальність. Ми активно підтримуємо благодійні та соціальні ініціативи, створюючи середовище, яке приносить користь суспільству.
Якщо ви шукаєте надійних партнерів, які зможуть втілити ваші ідеї та бізнес-завдання на найвищому рівні, звертайтесь до нас. Ми створимо ідеальний простір для вашого життя, роботи або інвестицій.














